3 Century Drive, Parsippany, NJ 07054
3 Century Drive, Parsippany, NJ 07054
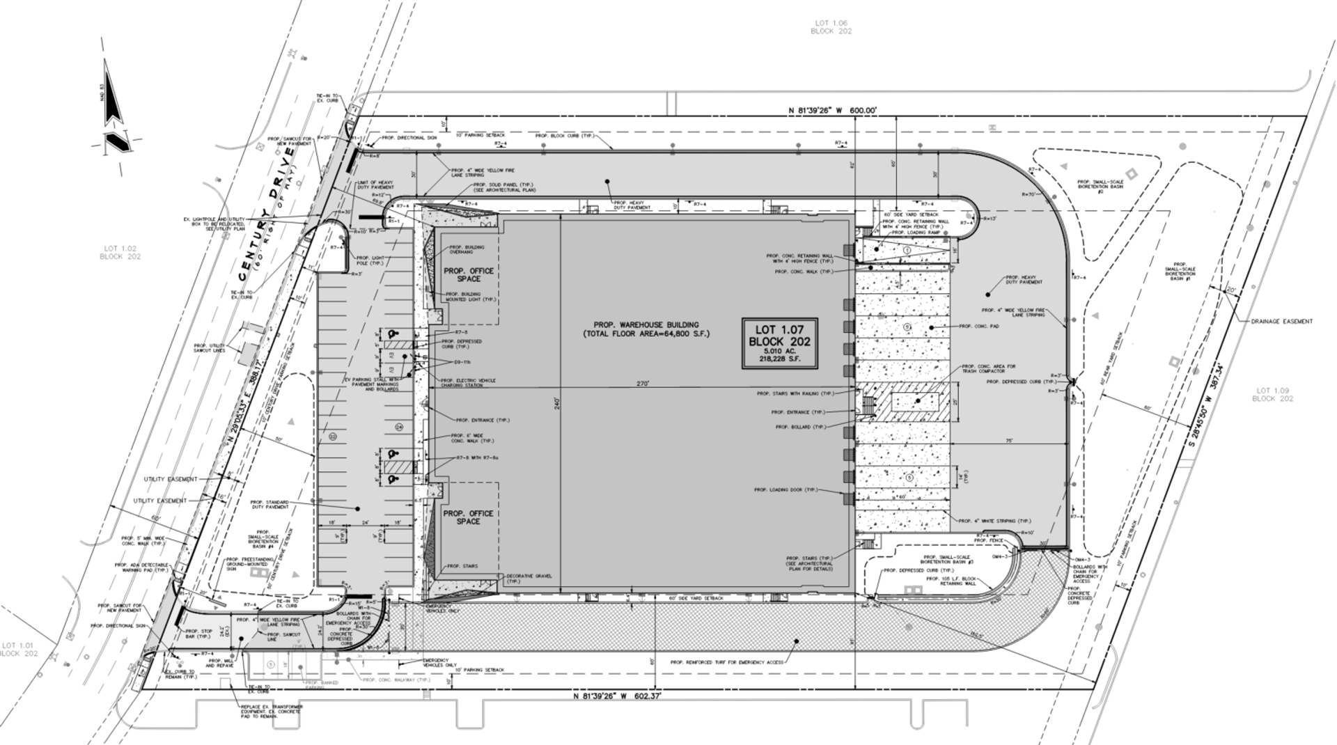
New Construction - Class A Warehouse in Parsippany, NJ Available Q4 2026
- 64,800 SF (divisible to 32,400 SF)
- 36' Clear Height
- 10 Dock High Docks
- 1 Drive-Up Ramp
- 1200 amps 480/287V
- 52'6" x 60' Column Spacing
- 135' wide Truck Court
- ESFR Sprinklers
- 46 Car Parking Spaces (includes 2 EV spaces)
- 5.01 AC
- Entertaining interior build-to-suite opportunities NOW!
- 36' Clear Height
- 10 Dock High Docks
- 1 Drive-Up Ramp
- 1200 amps 480/287V
- 52'6" x 60' Column Spacing
- 135' wide Truck Court
- ESFR Sprinklers
- 46 Car Parking Spaces (includes 2 EV spaces)
- 5.01 AC
- Entertaining interior build-to-suite opportunities NOW!
Contact us:



